longueville house refurbishment
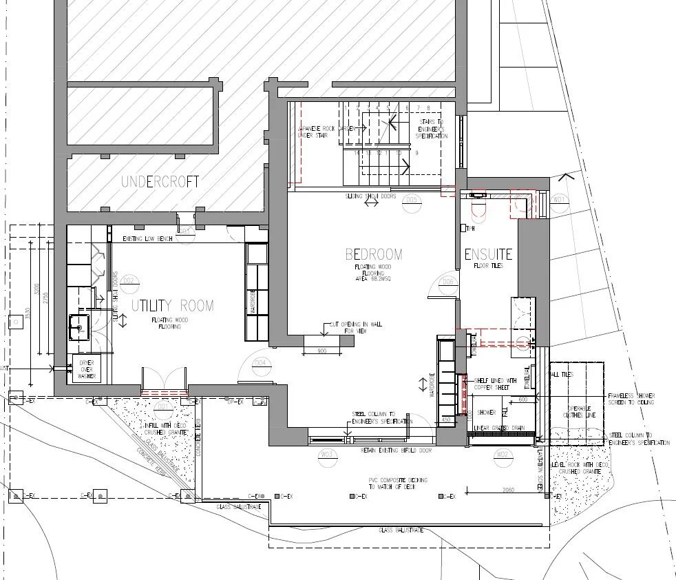
This classic habourside prewar home had an underutilised lower ground floor level that the clients wanted revamped to be a guest suite with a utilites room for laundry and storage.
Inspired by their Japanese style entry garden I proposed sliding shoji screens to provide privacy when in use by guests and slid back at other times.
The space under stairs can often be a dark and dusty hole, so to provide visual interest I proposed a raked rock garden to the space to contiue the subtle Japanese style.
japanese carp pool
sliding shoji style doors
tasmanian oak stairs
shoji style doors provide privacy whilst not compromising daylight
robes design to coordinate with shoji doors
doors conceal laundry
essastone 'chalkstone' benches with cement wall tiles from earp bros
full glazing to shower to allow a harbour view while showering
tas oak joinery with copper mesh panels & fittings
custom made copper shower head
view of the harbour from the shower
plan
3D model concept perspective
3D model concept perspective
3D model concept perspective